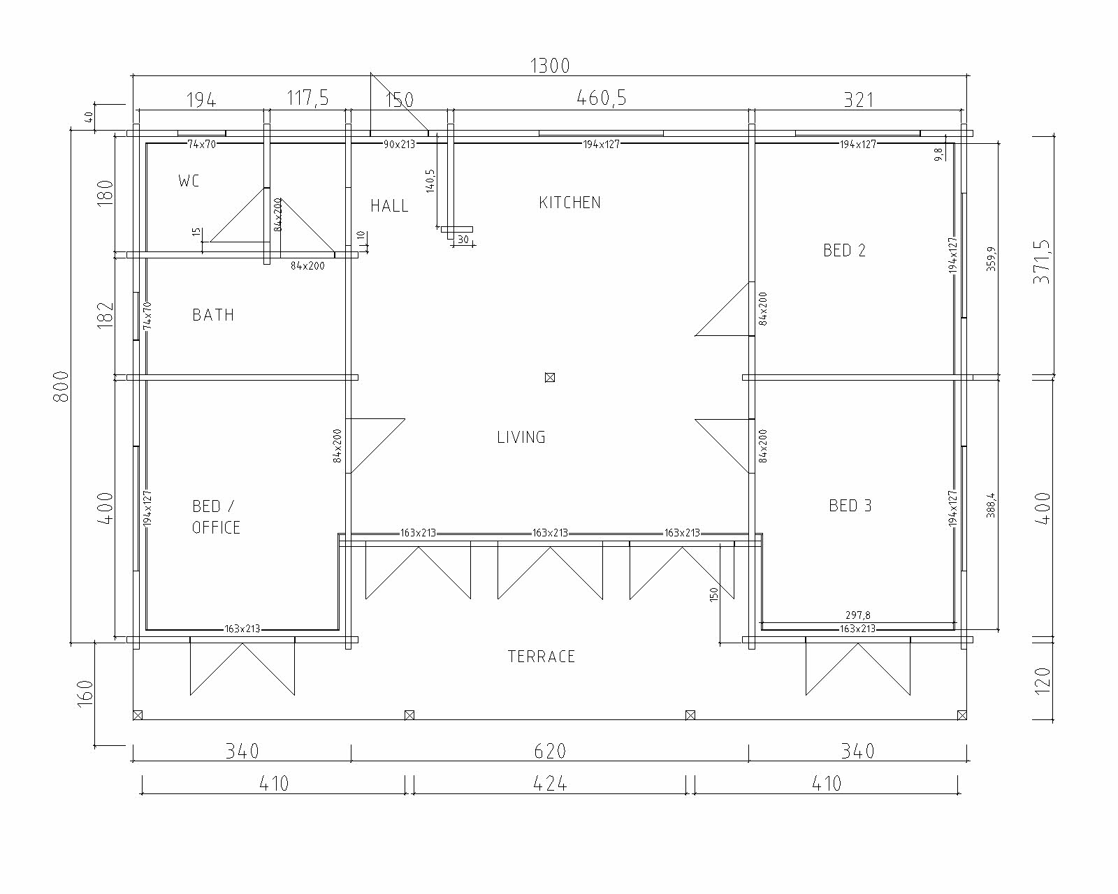
Marylin 95


Marylin 95 - 2 bed flat packed prefabricated wooden house This house comes as 2 or 3 bedroom house. It has a combined kitchen and living space and has with up to 3 bedrooms even space for a small family.