About Us
|
Contact Us
Built for generations
Living Houses
Holiday Homes
Saunas
Garden Houses
Log Garages
Galleries
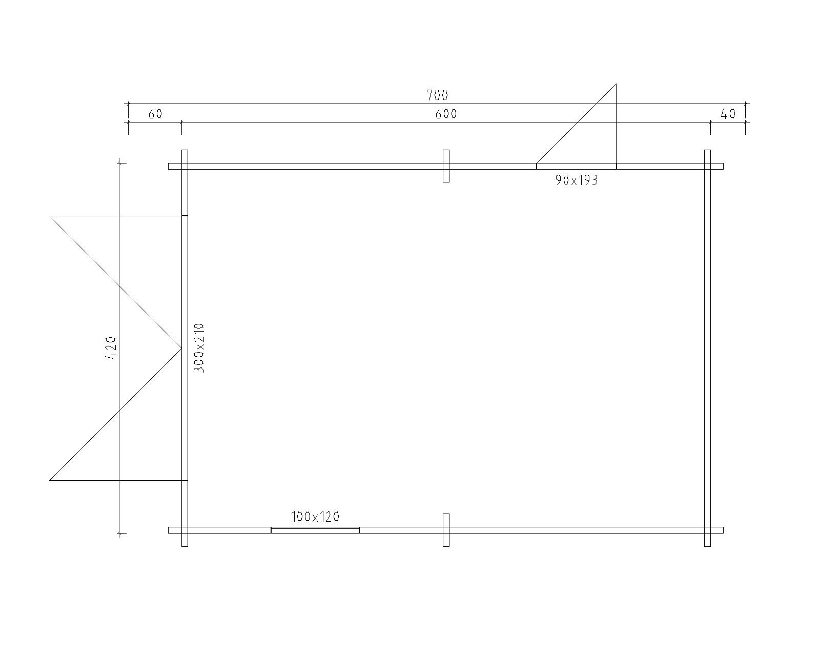
R garage
-70 mm
with or without a wooden floor
roof cover to be discussed
double glazed windows
wooden gate or rc sctional gatee
purlin roof rafter construction
Let us know your wishes and we will make a quote accordingly!