About Us
|
Contact Us
Built for generations
Living Houses
Holiday Homes
Saunas
Garden Houses
Log Garages
Galleries
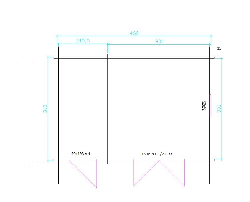
B70 Home Office 460x310
70 mm logs
wooden floor on strong floor raft
2 rooms
strong roof purlins
roof boards
choice of roofing materials such as tiles, bitumn shingles, wooden shingles, tin
double glazed windows
Contact me
Name
Email
Message
Antispam
Submit