About Us
|
Contact Us
Built for generations
Living Houses
Holiday Homes
Saunas
Garden Houses
Log Garages
Galleries
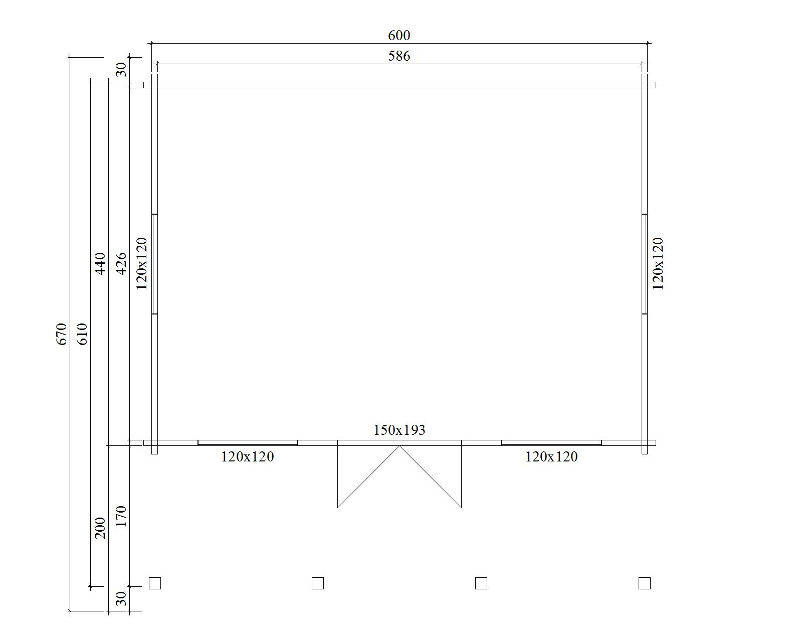
Arnika
44 mm or 70 mm logs
huge terrace
well constructed roof
your home office, gym or guest house with style
double glazed windows
strong banister with massive posts
Ask for your quote or send us your plan or sketch so we can make a quote for you. info@jphouses-eu