About Us
|
Contact Us
Built for generations
Living Houses
Holiday Homes
Saunas
Garden Houses
Log Garages
Galleries
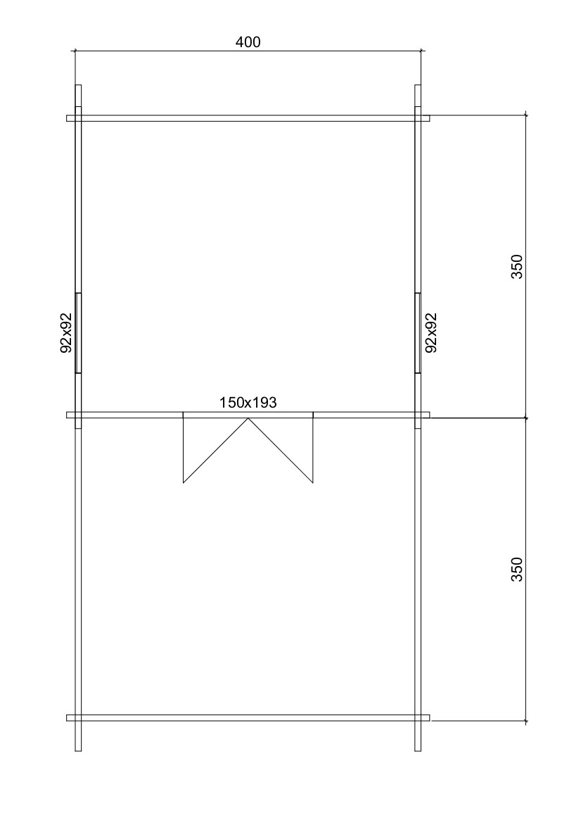
Summer kitchen B70 400x300 cm plus terrace
70 mm logs
3m terrace for bbq and all your family
a good size room with double door and windows
can be a gym, home office, guest house...
Ask for details under info@jphouses.eu