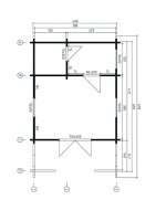
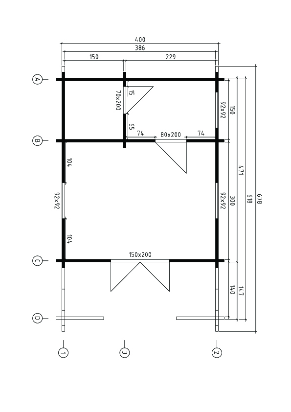
Kalle Kalla annex


This house is a home office but we also did sell it as a "granny annex" or a simple garden house with kitchen corner and tool room. 70mm logs a traditional constructed roof and a solid floor raft are the main features of this house. We are able to modify the house to meet your requirements.