About Us
|
Contact Us
Built for generations
Living Houses
Holiday Homes
Saunas
Garden Houses
Log Garages
Galleries
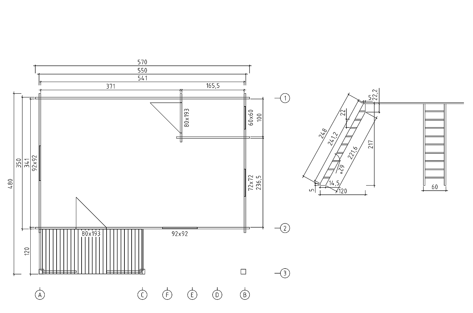
Karl II
A camping hut with upstairs a sleeping platform