About Us
|
Contact Us
Built for generations
Living Houses
Holiday Homes
Saunas
Garden Houses
Log Garages
Galleries
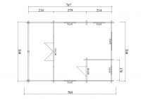
Kaleva B70
downstairs bath/sauna, kitchen corner, living room
big entrance windows and door
upstairs a huge space for sleeping and kids to play over the day
special triangle windows, wing opening
huge terrace with deck
the roof is ready for tile, shingles or tin
ask us for your quote
we are able to produce houses accordingly to your own ideas
Contact me
Name
Email
Message
Antispam
Submit