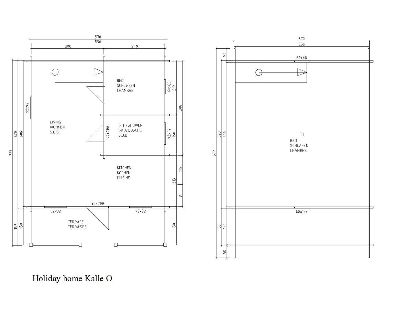
Kalle O HLL


This house has been made for a family with amny guests in the summer. We have living room, bed room, bath room and a terrace downstairs and a big space upstairs to allow kids to play if the weather is not great or for extar guests to stay over night.