Aili


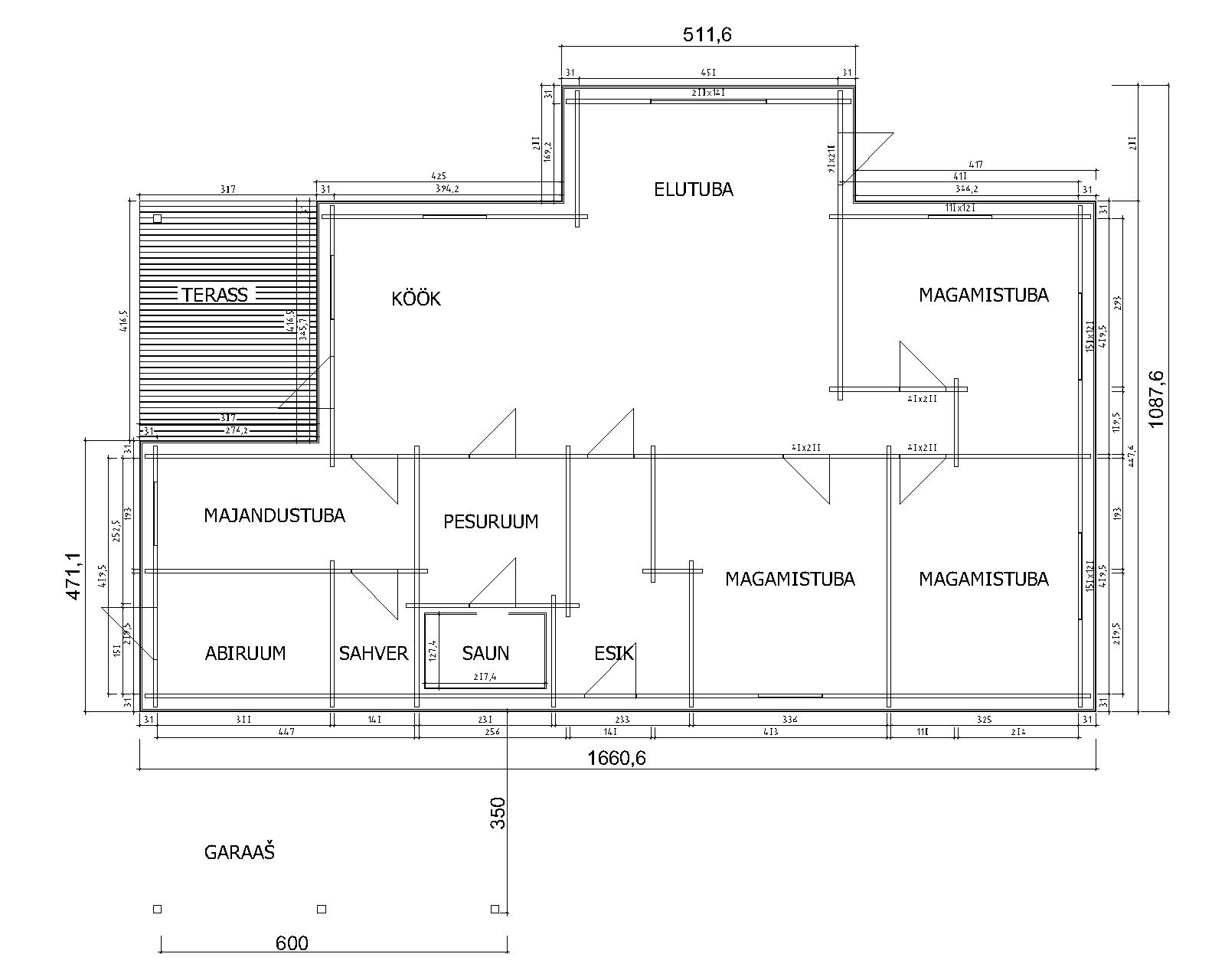
"The project " Aili" is a highly energy efficient living house with 3 bed rooms and an extra big space for the house hold. Open space kitchen and living are rounding the concept up. Brutto space is 179,57 m2. Attached to the house is a huge terrace and a garage roof. The client have chosen an earth heat collector heating combined with underfloor heating and radiators.

This project you will also find under case studies on our page. There you can see the process from sketch to design and construction, delivery and build.

http://www.jphouses.eu/en/home/case-studies/living-houses-case-studies/aili-150