Attwood


"Attwood" 2 bed room dwelling Jäneda Puit OÜ is designing and manufacturing a range of transportable mobile homes. Built to exceed (BS3632) mobile home standard and available in a choice of sizes and layouts to suit specific locations. Jäneda Puit Oy `s mobile homes are designed to meet statutory requirements to conform to the Caravan Act for Transportable Mobile Homes.

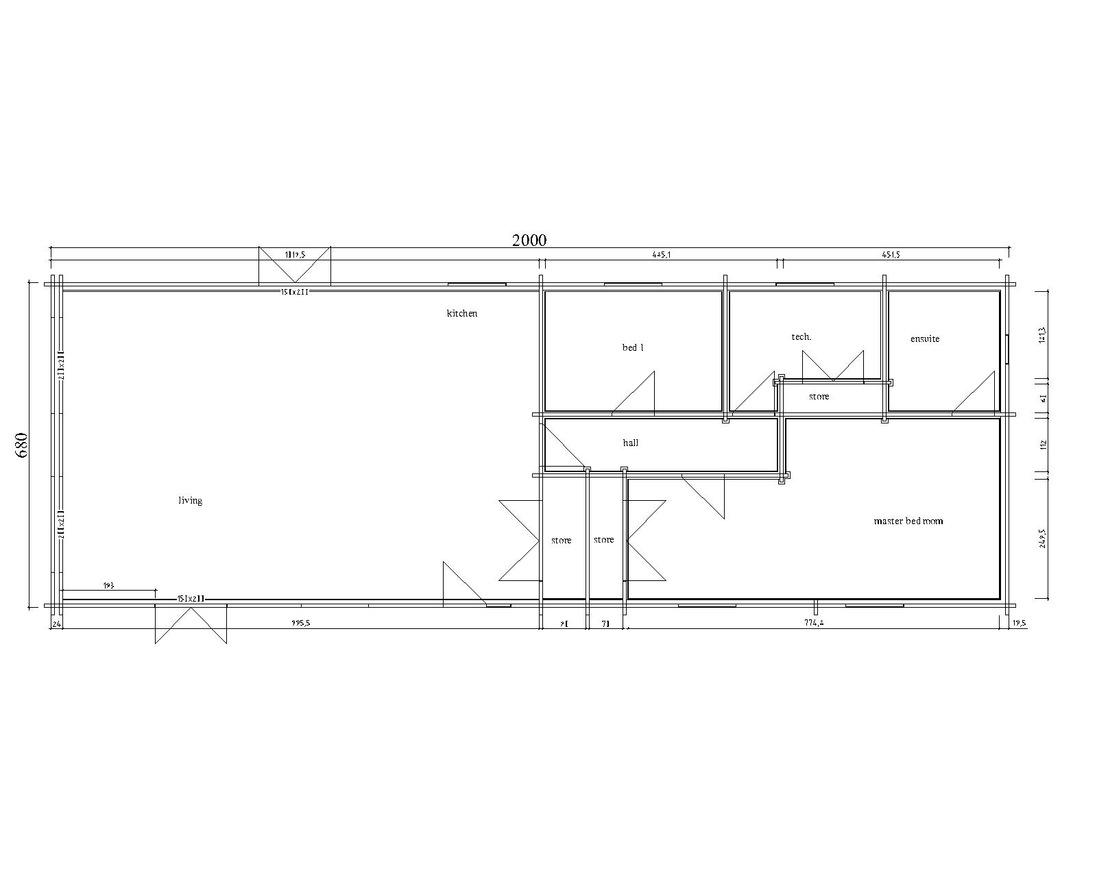
The Attwood is a client driven open space design for a maximum mobile home with 680 cm width and 2000 cm length. As the clients goal have been to achieve permanent dwelling status after a couple of years, the building has living house standard doors and windows and also already the right insulation in walls, floor and roof to achieve the correct u values. I think the photos are explaining best what have been achieved and how happy the clients can be with the team effort of production, builders and project management.