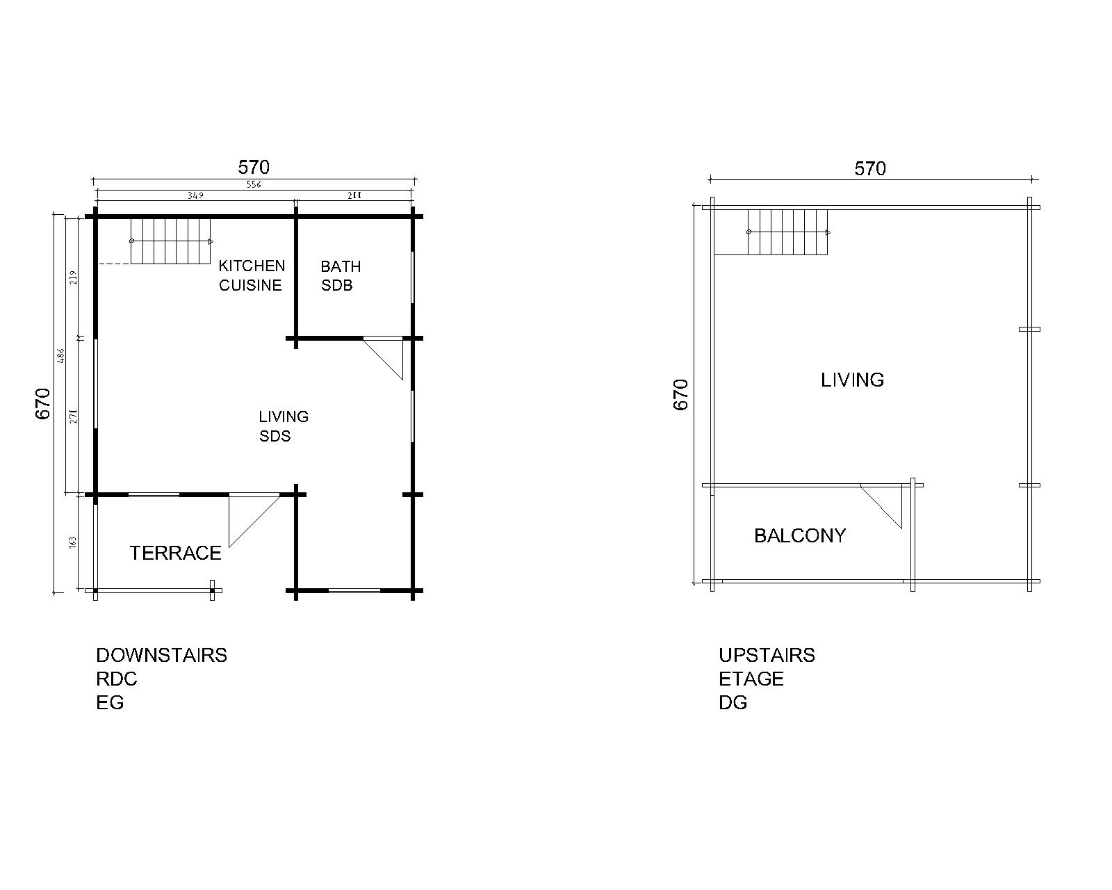
Kalle N holiday home-annex


This house is offering downstairs and upstairs space for the family, guest or your hobbies. 70mm logs and a well constructed house will ensure that generations will enjoy this house.

Contact us: info@jphouses.eu