About Us
|
Contact Us
Built for generations
Living Houses
Holiday Homes
Saunas
Garden Houses
Log Garages
Galleries
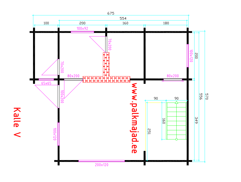
Kalle V holiday cottage
"Kalle V" holiday cottage ...