About Us
|
Contact Us
Built for generations
Living Houses
Holiday Homes
Saunas
Garden Houses
Log Garages
Galleries
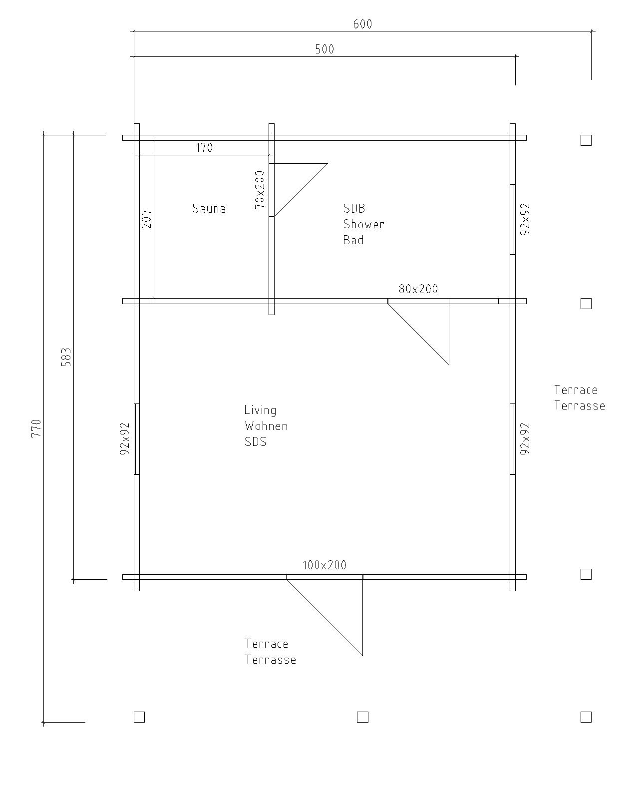
Toivo flat packed prefabricated sauna
"Toivo B70" flat packed prefabricated sauna
individual designs are possible
engineer controlled production
traditional construction details
well chosen materials
choice of window styles and differnet window constructions
over 30 years in the wood house industry
ask for your detailed description and a quote
tel:+3723898233 info@jphouses.eu