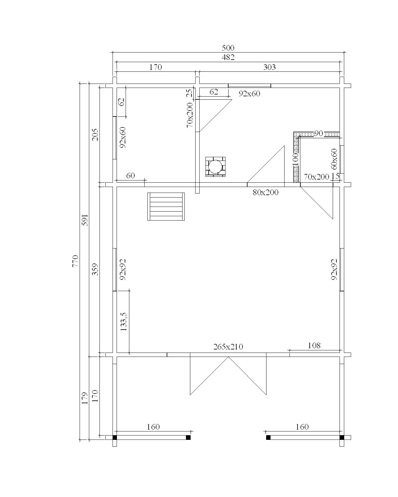
Sauna M prefabricated log cabin


Sauna M- prefabricated wooden house

  • 70 mm or 95 mm logs
  • purlin roof rafter roof
  • for shingles or tiles and also for tin
  • this house has a sauna and upstairs space above the sauna and bath

Contact us for your own sauna or holiday home +3723898233 info@jphouses.eu